こんにちは!ハウスモ不動産西長堀・堀江店です!
今回ご紹介するのは、JR大阪環状線野田駅より徒歩5分のマンションです!
「都心寄りで、ペットと、無理なく快適に暮らしたい」そんな単身の方におすすめ!
「エステムプラザ福島ジェネル」について
「エステムプラザ福島ジェネル」の物件概要

| 所在地 | 大阪府大阪市福島区吉野 |
|---|---|
| 最寄駅 | JR大阪環状線/野田駅 徒歩5分 |
| 築年数 | 2017年12月 |
| 間取り | 1K |
| 構造 | 鉄筋コンクリート |
「エステムプラザ福島ジェネル」の室内詳細
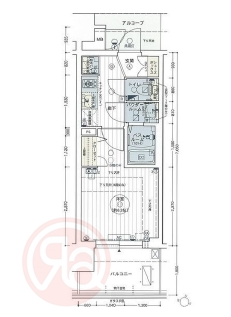
間取り

水道(公営) / ガス(都市) / 排水(下水) / バス専用共同(専用) / トイレ専用共同(専用) / バス・トイレ別 / コンロ種別(ガス) / コンロ口数(二口) / システムキッチン / 追い焚き / エアコン / 室内洗濯機置き場 / CATV / CSアンテナ / BSアンテナ / オートロック / エレベータ / バルコニー / フローリング / 宅配ボックス / 駐輪場 / バイク置き場 / タイル貼り / internet対応(光ファイバー) / TVドアホン / 温水洗浄便座 / 浴室乾燥機 / ごみ出し24時間OK / 独立洗面台 / 防犯カメラ / インターネット利用料無料 / カード決済(初期費用) / 全居室収納 / クローゼット / シューズボックス / 照明器具付き / 楽器相談不可 / 事務所可 / 二人入居可 / ペット相談 / 保証人不要 / 分譲賃貸 / 敷地内ゴミ置き場
※設備をクリック頂くと設備で条件を絞ることが可能です
LDK/洋室


6畳の洋室は、一人暮らしに無駄のないサイズ感で、南向きのため日中は自然光が入りやすく、室内全体が明るい印象です。朝の支度や休日のリラックスタイムも、気持ちよく過ごせる空間となっています。コンパクトながらも、ベッド・デスク・収納家具を配置しやすい間取りで、在宅ワークや趣味の時間を取り入れたい方にも対応可能で、「広さ以上に使いやすさ」を感じられる設計です。
キッチン

キッチンはコンパクトながら使い勝手を重視した設計で、縦型2口ガスコンロを完備。調理スペースも確保されており、同時調理が可能なので、自炊派の方にも嬉しい環境です。上下に収納スペースがあり、食器や調理器具を整理しやすく、作業効率が上がります。忙しい転勤者の方でも、シンプルな動線でスムーズに料理ができる工夫が施されています。
バスルーム

バスルームは浴室乾燥機能つきなので、天気に左右されずに洗濯物が乾かすことができ、
女性の一人暮らしや忙しいビジネスパーソン、梅雨の時期や花粉の季節にも大活躍します。
乾燥機能だけでなく、カビ予防や暖房機能としても使えるため、一年中快適なバスタイムになります◎
脱衣所

脱衣室には独立洗面台が設けられており、朝の支度や帰宅後の身だしなみを整える時間が快適に。鏡裏収納がしっかり確保されているため、スキンケア用品やヘアセット道具、日常的に使う小物類をすっきりと隠して置けます。洗面台周りに物が出っぱなしにならないので、毎日使う場所なのに自然と清潔感がキープできる点が魅力です。生活感を抑えつつ“自分のための身支度スペース”をつくりたい方にぴったりの仕様です◎
トイレ

トイレは、空間全体を明るく見せてくれる白を基調とした清潔感のあるデザイン。シンプルながらも圧迫感がなく、毎日自然に使いたくなる心地よさがあります。さらに、嬉しい温水便座を完備しているため、寒い季節でも快適に使用でき、来客時にも安心して案内できる設備が整っています。細部まで気持ちよく使える工夫が詰まった、生活の質をさりげなく高めてくれるトイレ空間です◎
収納

洋室に設置されたクローゼットはコンパクトですが、ハンガーラッグ付きで、丈の長いコートやシャツ類はしわなくかけることができます。入りきらないオフシーズンの衣類はボックス収納やベッド下収納などで補うのがおすすめです。限られたスペースを有効活用することで、スッキリとした暮らしが実現します。
「エステムプラザ福島ジェネル」のおすすめポイント
お部屋探しでお困りの方へ
ハウスモ不動産西長堀・堀江店では、大阪市西区、中央区、浪速区、大正区、港区を中心に大阪市内の最新の賃貸情報(マンション・アパート・戸建)をお届けしています。
任せてよかったと納得、安心していただけるお部屋探しのサポートを提供させていただきます。
ご希望のお部屋がホームページに掲載されていない場合でもご安心ください。家主様のご都合でインターネットに掲載できないご希望エリアの物件をご紹介させていただきます。
「賃貸・売買で契約の事がわからない」「遠方で来店ができない」「初期費用を抑えたい」等のお悩みはお気軽にご相談ください。