こんにちは!ハウスモ不動産西長堀・堀江店です!
今回ご紹介するのは、中央線朝潮橋駅より徒歩5分のマンションです!
高層階角部屋!快適な一人暮らしに!
「アドバンス大阪ベイココナ」について
「アドバンス大阪ベイココナ」の物件概要

| 所在地 | 大阪府大阪市港区夕凪 |
|---|---|
| 最寄駅 | Osaka Metro中央線/朝潮橋駅 徒歩5分 |
| 築年数 | 2022年5月 |
| 間取り | 1K |
| 構造 | 鉄筋コンクリート |
「アドバンス大阪ベイココナ」の室内詳細
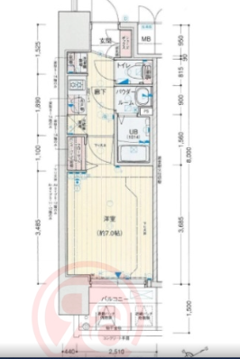
間取り

水道(公営) / ガス(都市) / 排水(下水) / バス専用共同(専用) / トイレ専用共同(専用) / バス・トイレ別 / コンロ種別(ガス) / コンロ口数(二口) / システムキッチン / エアコン / 室内洗濯機置き場 / CATV / CSアンテナ / BSアンテナ / オートロック / エレベータ / バルコニー / フローリング / 宅配ボックス / 駐輪場 / バイク置き場 / タイル貼り / internet対応(その他インターネット) / 角部屋 / TVドアホン / 温水洗浄便座 / 浴室乾燥機 / ごみ出し24時間OK / 独立洗面台 / 防犯カメラ / インターネット利用料無料 / カード決済(初期費用) / 全居室収納 / クローゼット / シューズボックス / 照明器具付き / 楽器相談不可 / 事務所可 / 二人入居可 / ペット相談 / 保証人不要 / 敷地内ゴミ置き場
※設備をクリック頂くと設備で条件を絞ることが可能です
LDK/洋室


7畳の洋室は、シンプルながら家具のレイアウトがしやすい長方形の間取りで、白基調のお部屋なので、どんな家具とも相性が良いです。高層階角部屋ならではの開放感があり、東向きの窓からは毎朝しっかりと自然光が差し込みます。朝日を浴びて気持ちよく一日を始められる空間は、在宅ワークにもリラックスタイムにも最適です。
キッチン

コンパクトながらも効率的に設計されたキッチンは、一人暮らしにぴったりの機能性を備えています。必要な調理スペースを確保しつつ、収納も工夫されており、普段の自炊や簡単な料理をするには十分な環境です。駅近で外食もしやすい立地ながら、気分に合わせて自宅での食事を楽しめるのも嬉しいポイントです。
バスルーム

バスルームは浴室乾燥機能つきなので、天気に左右されずに洗濯物が乾かすことができ、
女性の一人暮らしや梅雨の時期や花粉の季節にも大活躍します。
乾燥機能だけでなく、カビ予防や暖房機能としても使えるため、一年中快適なバスタイムに◎
脱衣所

脱衣室には独立洗面台を完備されているので、朝の身支度や帰宅後の手洗い、夜のスキンケアタイムまで、
使い勝手がよくストレスのない設計です。鏡裏収納付きですっきりとした清潔感ある見た目に◎
脱衣室がしっかりと区切られているので、来客時のプライバシーもしっかりと確保できます。
トイレ

独立タイプのトイレは、温水洗浄便座付きで機能性も高く、清潔感のある快適な空間に仕上がっています。シンプルでありながらも生活に欠かせない設備がしっかり整っており、来客時にも安心です。
収納

クローゼットはコンパクトですが、ハンガーラッグ付きで、シャツ類はしわなくかけることができます。
入りきらないオフシーズンの衣類はボックス収納やベッド下収納などで補うのがおすすめ。
限られたスペースを有効活用することで、スッキリとした暮らしが実現します。
「アドバンス大阪ベイココナ」のおすすめポイント
お部屋探しでお困りの方へ
ハウスモ不動産西長堀・堀江店では、大阪市西区、中央区、浪速区、大正区、港区を中心に大阪市内の最新の賃貸情報(マンション・アパート・戸建)をお届けしています。
任せてよかったと納得、安心していただけるお部屋探しのサポートを提供させていただきます。
ご希望のお部屋がホームページに掲載されていない場合でもご安心ください。家主様のご都合でインターネットに掲載できないご希望エリアの物件をご紹介させていただきます。
「賃貸・売買で契約の事がわからない」「遠方で来店ができない」「初期費用を抑えたい」等のお悩みはお気軽にご相談ください。